Hotel Design Plan Download CAD file
Description
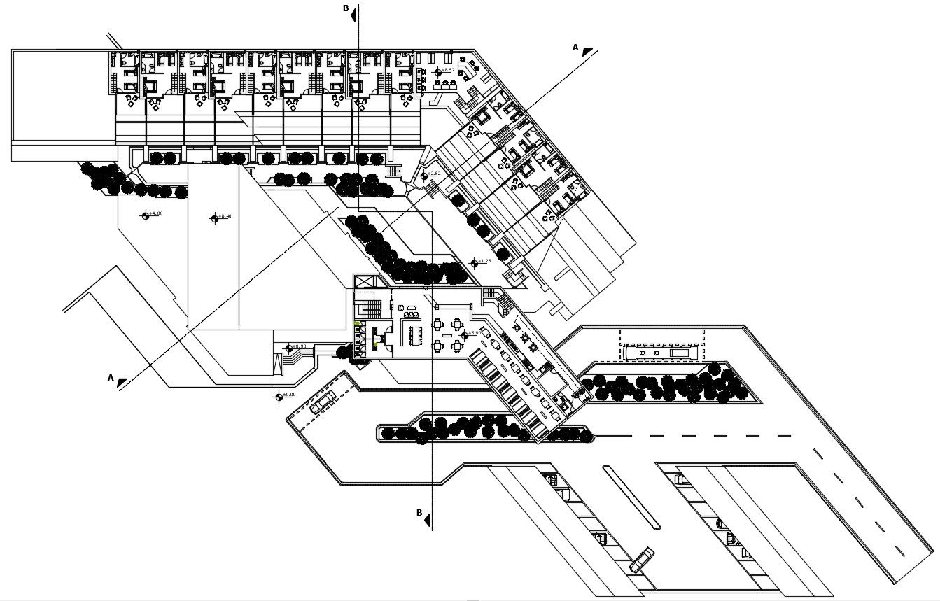
Hotel Plan Layout download CAD drawing that shows floor construction plan Design along with furniture details in the building. Section line and floor level details also included in drawing.
Uploaded by:

