LOGIN
HOME
CATEGORIES
UPLOAD FILE
PRICING
HOUSE PLAN
ABOUT US
CONTACT US
House Design Plan CAD file download
Home
Categories
Architecture
House Plan
House Design Plan CAD file download
Uploaded by:
Jiya
View Profile
View Profile
Description
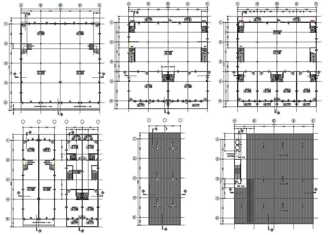
Drawing details of apartment and terrace layout plan design which includes dimension and hidden line details along with floor level details.
File Type:
DWG
File Size:
618 KB
Category::
Architecture
Sub Category::
House Plan
type:
Gold
Uploaded by:
Jiya
View Profile
Download
Add to libary
find Latest
Related
Files