LOGIN
HOME
CATEGORIES
UPLOAD FILE
PRICING
HOUSE PLAN
ABOUT US
CONTACT US
Fire Fighting System Autocad Drawing
Home
Categories
Electrical
Light Fixtures & Fittings
Fire Fighting System Autocad Drawing
Uploaded by:
Poonam
View Profile
View Profile
Description
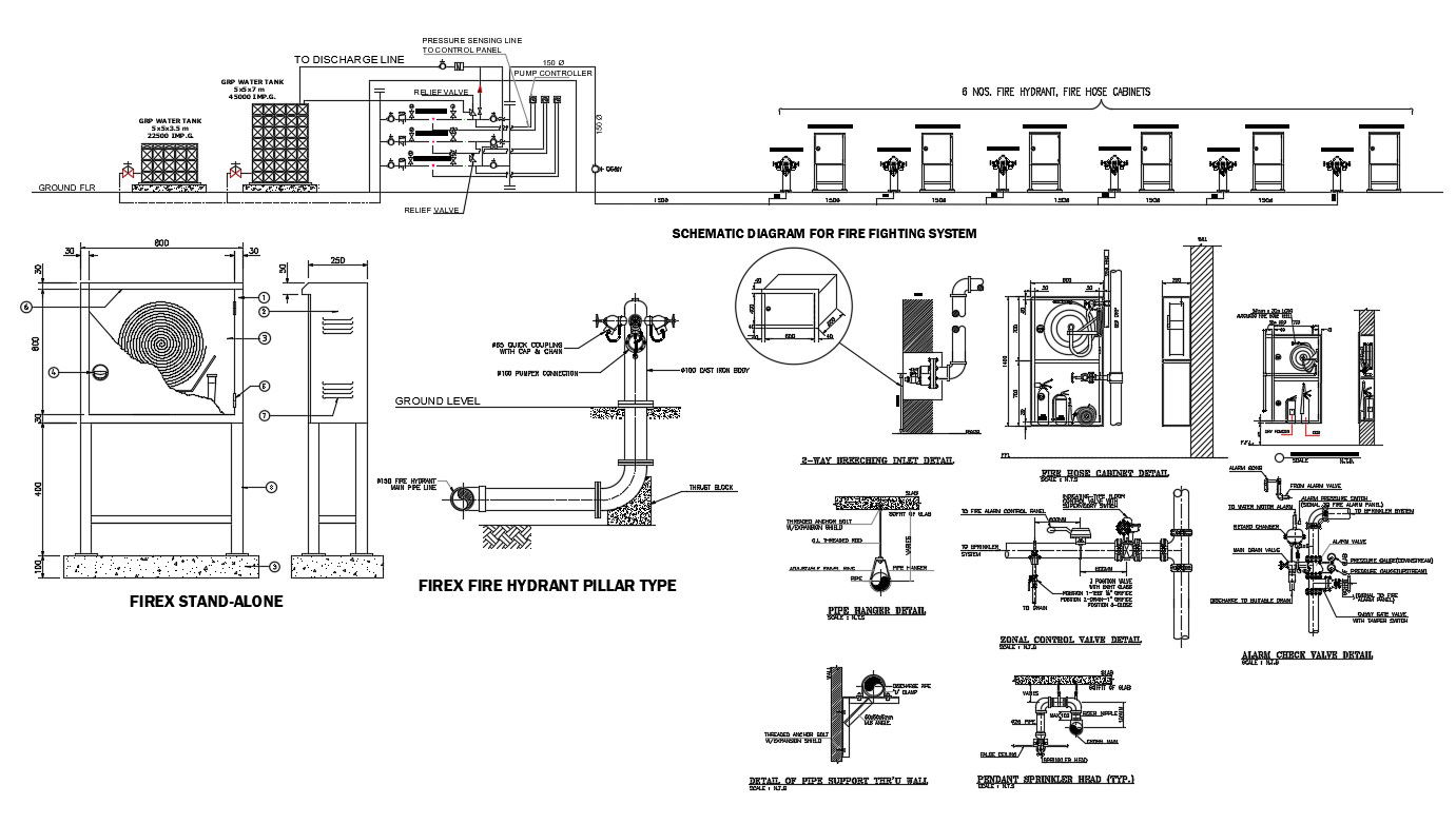
Fire fighting system cad plan; display the diagram of the fire fighting system, fire hydrant pillar, sprinkler head, fire hose cabinet details, control valve details.
File Type:
DWG
File Size:
746 KB
Category::
Electrical
Sub Category::
Light Fixtures & Fittings
type:
Gold
Uploaded by:
Poonam
View Profile
Download
Add to libary
find Latest
Related
Files