LOGIN
HOME
CATEGORIES
UPLOAD FILE
PRICING
HOUSE PLAN
ABOUT US
CONTACT US
Restaurant Design Plan CAD File Download
Home
Categories
Architecture
Hotels and Restaurants
Restaurant Design Plan CAD File Download
Uploaded by:
Jiya
View Profile
View Profile
Description
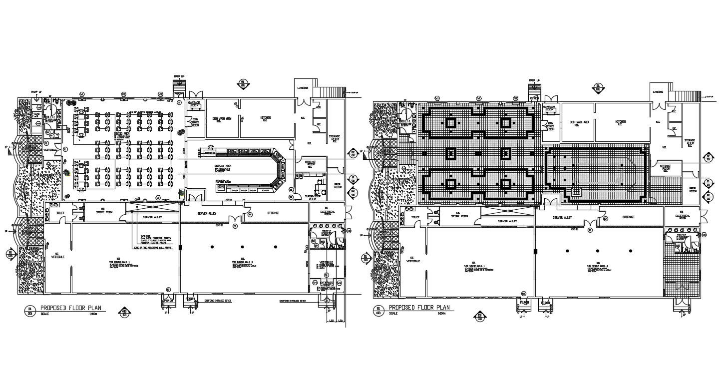
2d design plan of restaurant building which shows the room dimension details along with furniture blocks details and dining area, kitchen area details.
File Type:
DWG
File Size:
1.7 MB
Category::
Architecture
Sub Category::
Hotels and Restaurants
type:
Gold
Uploaded by:
Jiya
View Profile
Download
Add to libary
find Latest
Related
Files