LOGIN
HOME
CATEGORIES
UPLOAD FILE
PRICING
HOUSE PLAN
ABOUT US
CONTACT US
Bank Plan CAD Drawing Download
Home
Categories
Architecture
Bank Drawing
Bank Plan CAD Drawing Download
Uploaded by:
Jiya
View Profile
View Profile
Description
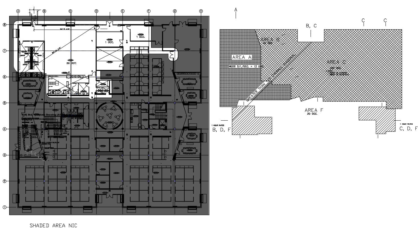
2d plan of bank building which shows the work floor plan of building along with building furniture blocks details, dimension hidden line details, floor level details.
File Type:
DWG
File Size:
1.2 MB
Category::
Architecture
Sub Category::
Bank Drawing
type:
Gold
Uploaded by:
Jiya
View Profile
Download
Add to libary
find Latest
Related
Files