Download Bank Plan AutoCAD drawing
Description
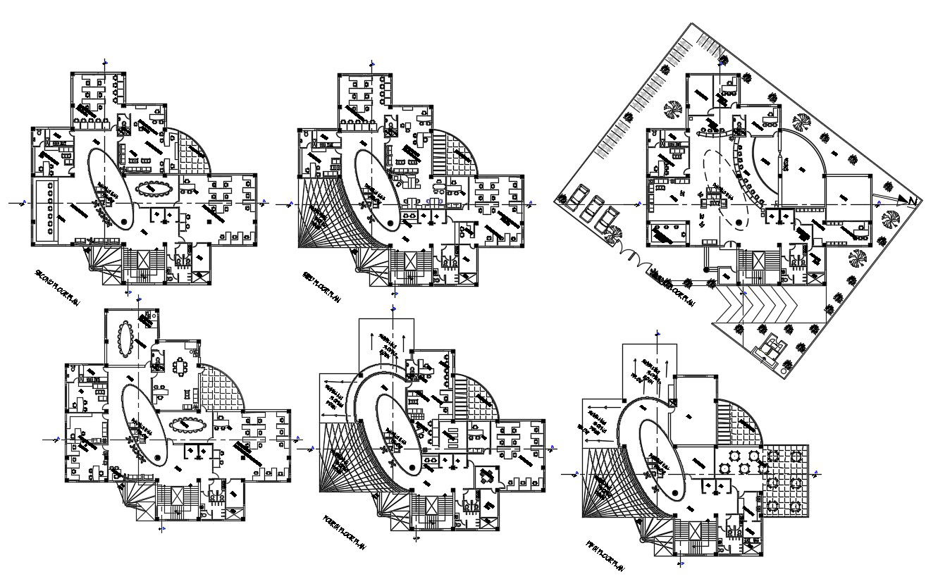
2d floor plan design of bank building which shows furniture layout details in building along with floor level details, section line details, parking space details. The bank includes detaisl of cash deporit counter, manager office, waiting area, Atm machine, etc details.
Uploaded by:
