House Interior Design Plan
Description
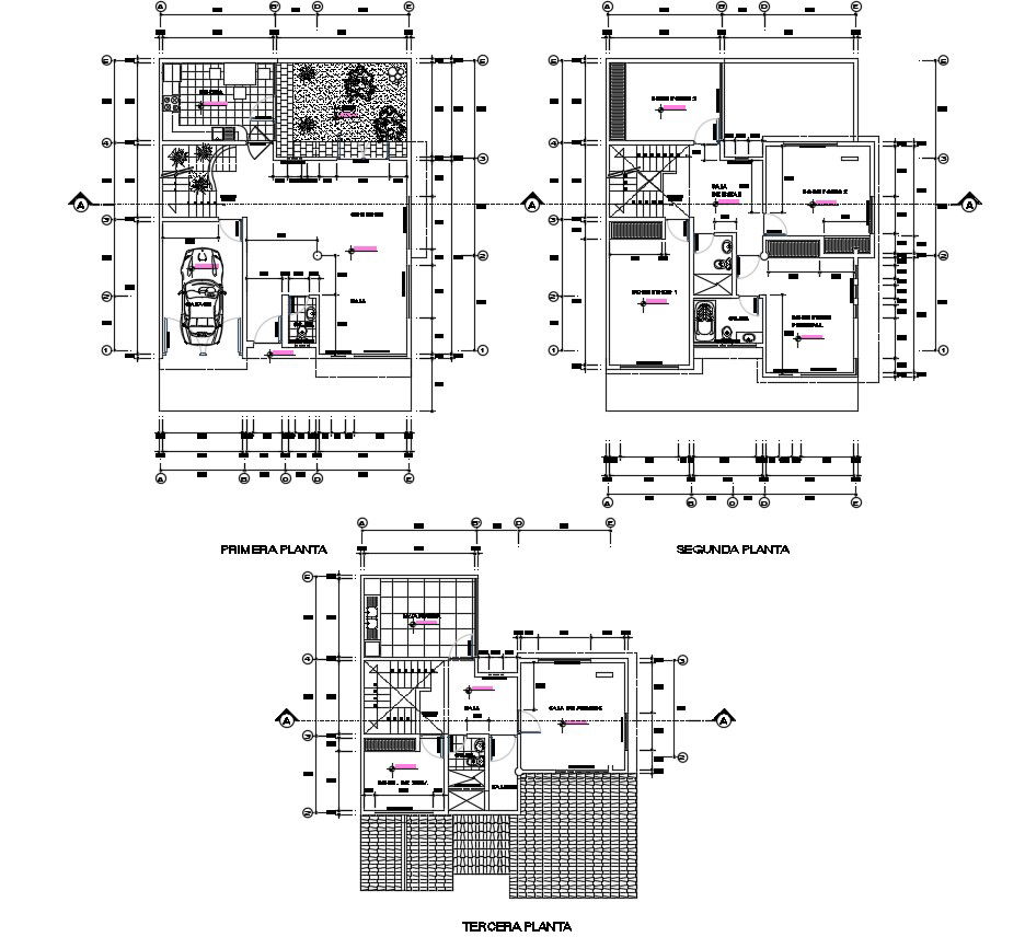
Single-family housing details CAD floor layout plan which shows room details of the drawing-room, bedroom, kitchen and dining area, sanitary toilet and bathroom details, etc in house, floor level details with parking space details also presented in CAD drawing.
Uploaded by:

