LOGIN
HOME
CATEGORIES
UPLOAD FILE
PRICING
HOUSE PLAN
ABOUT US
CONTACT US
Bathroom Floor Plan CAD File
Home
Categories
Interior Design
Bathroom Interior
Bathroom Floor Plan CAD File
Uploaded by:
Jiya
View Profile
View Profile
Description
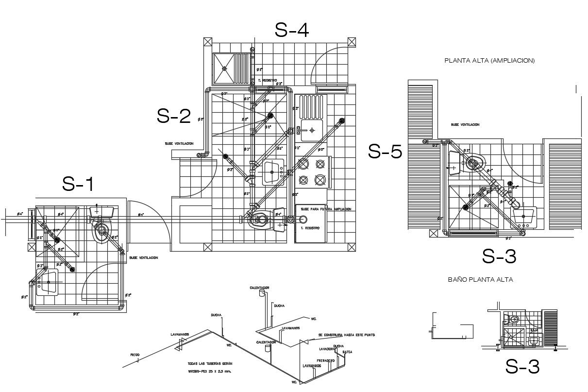
2d drawing plan of sanitary bathroom which shows sanitary blocks details of washbasin, water closet, bath-tub along with plumbing blocks details.
File Type:
DWG
File Size:
579 KB
Category::
Interior Design
Sub Category::
Bathroom Interior
type:
Gold
Uploaded by:
Jiya
View Profile
Download
Add to libary
find Latest
Related
Files