House Layout Design Plan
Description
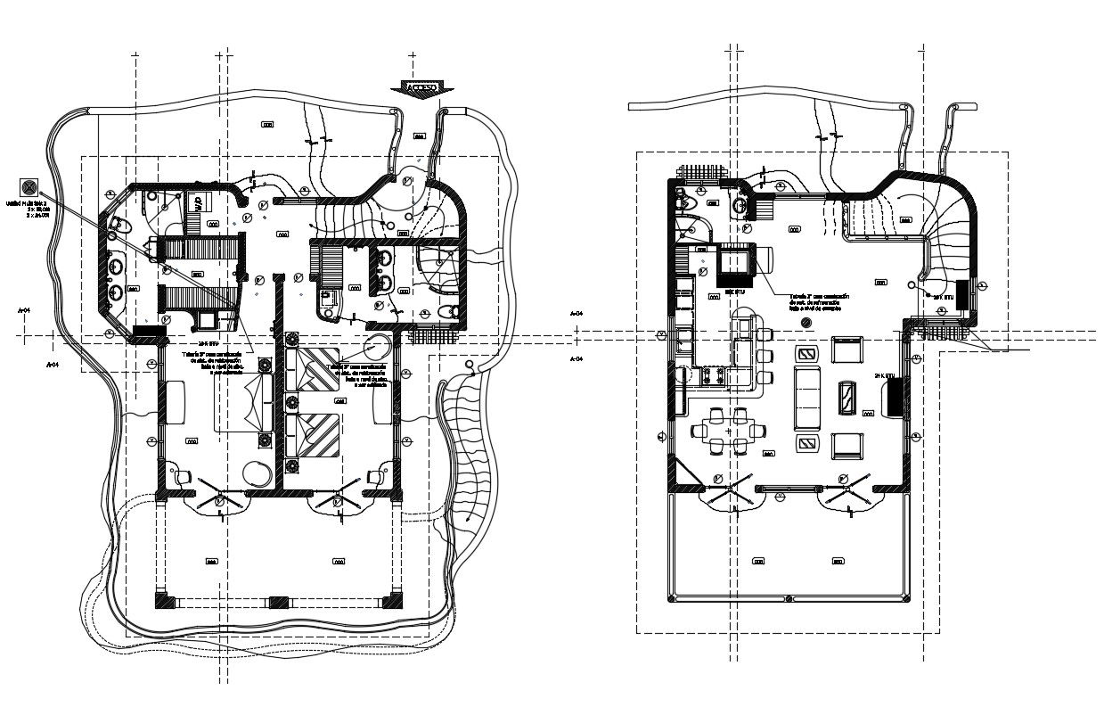
Furnished house design plan which shows work plan of the house along with floor level details and room details includes details of the drawing-room, bedroom, kitchen and dining area, sanitary toilet and bathroom details, and many other units details.
File Type:
DWG
File Size:
1.7 MB
Category::
Interior Design
Sub Category::
Bungalows Exterior And Interior Design
type:
Gold
Uploaded by:
