Flat Roof Design Plans
Description
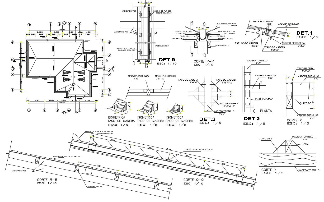
2d design of roof structure details CAD drawing which shows the roof plan details along with roof truss design details and roof structure components details. roof span details, main sag tie details, angle sections details, purlin details, principal rafter details, and other unit details also included in the drawing.
File Type:
DXF
File Size:
259 KB
Category::
Construction
Sub Category::
Construction Detail Drawings
type:
Gold
Uploaded by:
