LOGIN
HOME
CATEGORIES
UPLOAD FILE
PRICING
HOUSE PLAN
ABOUT US
CONTACT US
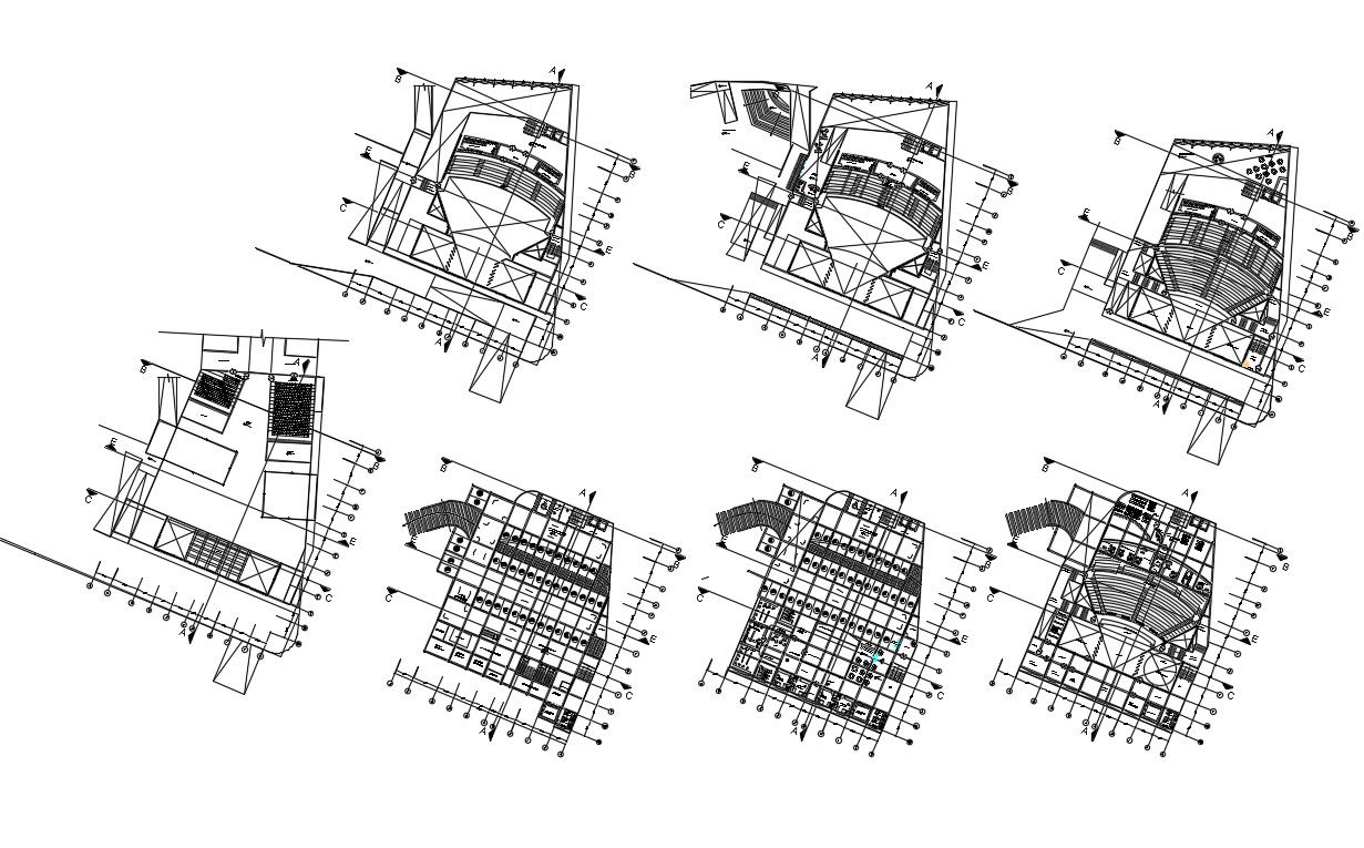
Movie Theater Plan
Home
Categories
Architecture
Multiplex Theater
Movie Theater Plan
Uploaded by:
Jiya
View Profile
View Profile
Description
2d design of multiplex theater layout plan which shows the work plan of building along with theater screen details, seating arrangement details, and dimension hidden line details.
File Type:
DWG
File Size:
2.2 MB
Category::
Architecture
Sub Category::
Multiplex Theater
type:
Gold
Uploaded by:
Jiya
View Profile
Download
Add to libary
find Latest
Related
Files