LOGIN
HOME
CATEGORIES
UPLOAD FILE
PRICING
HOUSE PLAN
ABOUT US
CONTACT US
Library Interior Design Planning
Home
Categories
Architecture
Collage Drawing
Library Interior Design Planning
Uploaded by:
Jiya
View Profile
View Profile
Description
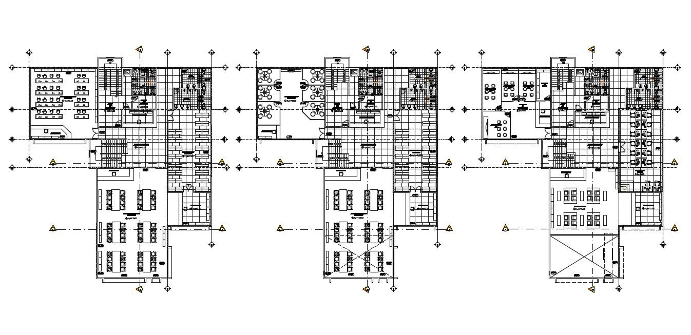
CAD design plan of library 2d view which shows furniture layout design in building along with bookshelves table and chair details and building floor level detailing.
File Type:
DWG
File Size:
1.1 MB
Category::
Architecture
Sub Category::
Collage Drawing
type:
Gold
Uploaded by:
Jiya
View Profile
Download
Add to libary
find Latest
Related
Files