Terminal Building Plan
Description
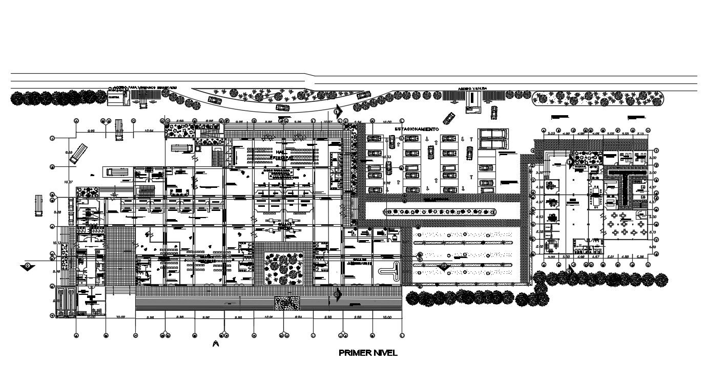
2d design of airport terminal design which shows the layout design of terminal building along with terminal building facilities and amenities detail. parking facility details and other unit details also included in the drawing.
Uploaded by:

