LOGIN
HOME
CATEGORIES
UPLOAD FILE
PRICING
HOUSE PLAN
ABOUT US
CONTACT US
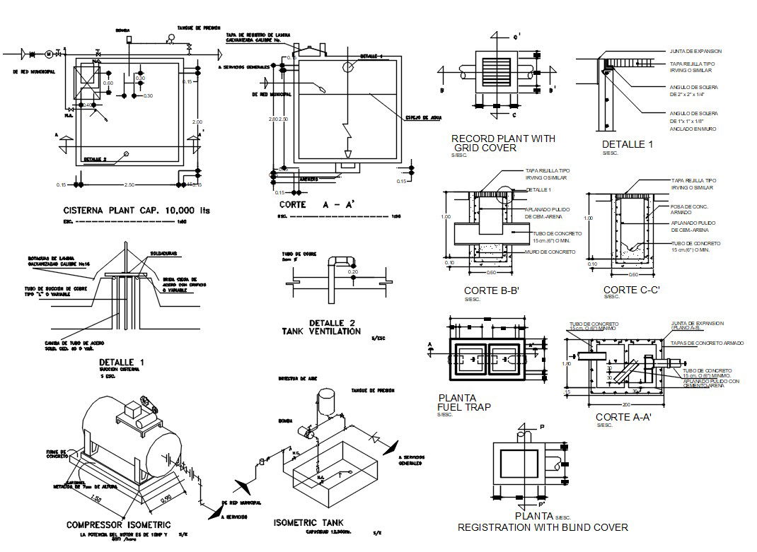
Water Grid Cover Plan Free DWG
Home
Categories
Details
Structural Steel Drawings
Water Grid Cover Plan Free DWG
Uploaded by:
Komal
View Profile
View Profile
Description
Water Grid Cover Plan Free DWG File; 2d CAD drawing of Water Grid Cover Plan sectional view in AutoCAD format. download free DWG file and get more detailed with description.
File Type:
DWG
File Size:
1.1 MB
Category::
Details
Sub Category::
Structural Steel Drawings
type:
Free
Uploaded by:
Komal
View Profile
Download
Add to libary
find Latest
Related
Files