LOGIN
HOME
CATEGORIES
UPLOAD FILE
PRICING
HOUSE PLAN
ABOUT US
CONTACT US
Electricity Plans CAD File
Home
Categories
Electrical
Light Fixtures & Fittings
Electricity Plans CAD File
Uploaded by:
Jiya
View Profile
View Profile
Description
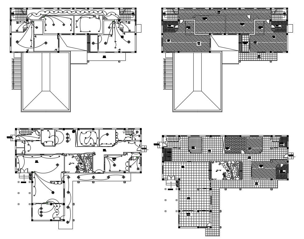
CAD floor plan of building electrical installation which shows earthing wire details, fuse circuits details, electrical wiring and other unit details.
File Type:
DWG
File Size:
670 KB
Category::
Electrical
Sub Category::
Light Fixtures & Fittings
type:
Gold
Uploaded by:
Jiya
View Profile
Download
Add to libary
find Latest
Related
Files