LOGIN
HOME
CATEGORIES
UPLOAD FILE
PRICING
HOUSE PLAN
ABOUT US
CONTACT US
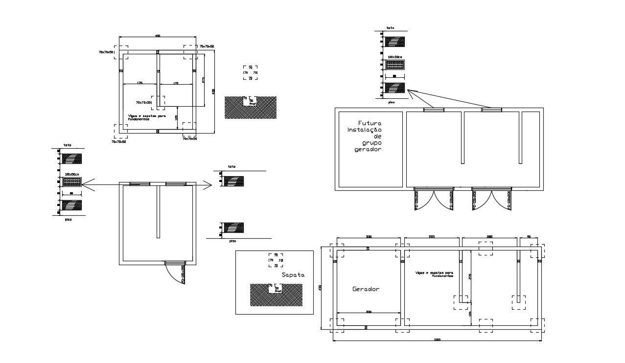
Generator Room Plan
Home
Categories
Electrical
Interior Design Electrical
Generator Room Plan
Uploaded by:
Jiya
View Profile
View Profile
Description
2d drawing details of generator room which shows the design of room plan along with electrical automation blocks details and dimension hidden line details.
File Type:
DWG
File Size:
86 KB
Category::
Electrical
Sub Category::
Interior Design Electrical
type:
Free
Uploaded by:
Jiya
View Profile
Download
Add to libary
find Latest
Related
Files