LOGIN
HOME
CATEGORIES
UPLOAD FILE
PRICING
HOUSE PLAN
ABOUT US
CONTACT US
Steel Pedestrian Bridge Design
Home
Categories
Construction
Bridge Construction
Steel Pedestrian Bridge Design
Uploaded by:
Jiya
View Profile
View Profile
Description
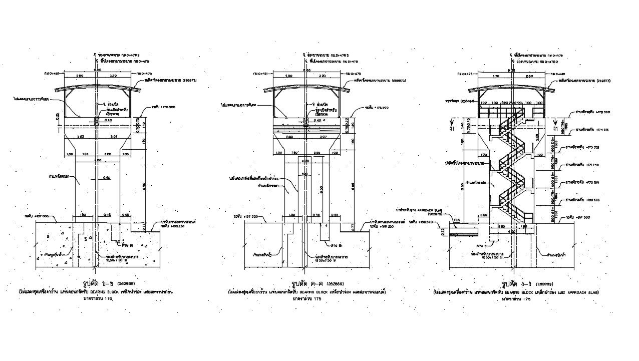
Construction design of bridge pier which shows the staircase details along with walk bridge shed design details and dimension bridge height details.
File Type:
DWG
File Size:
836 KB
Category::
Construction
Sub Category::
Bridge Construction
type:
Gold
Uploaded by:
Jiya
View Profile
Download
Add to libary
find Latest
Related
Files