LOGIN
HOME
CATEGORIES
UPLOAD FILE
PRICING
HOUSE PLAN
ABOUT US
CONTACT US
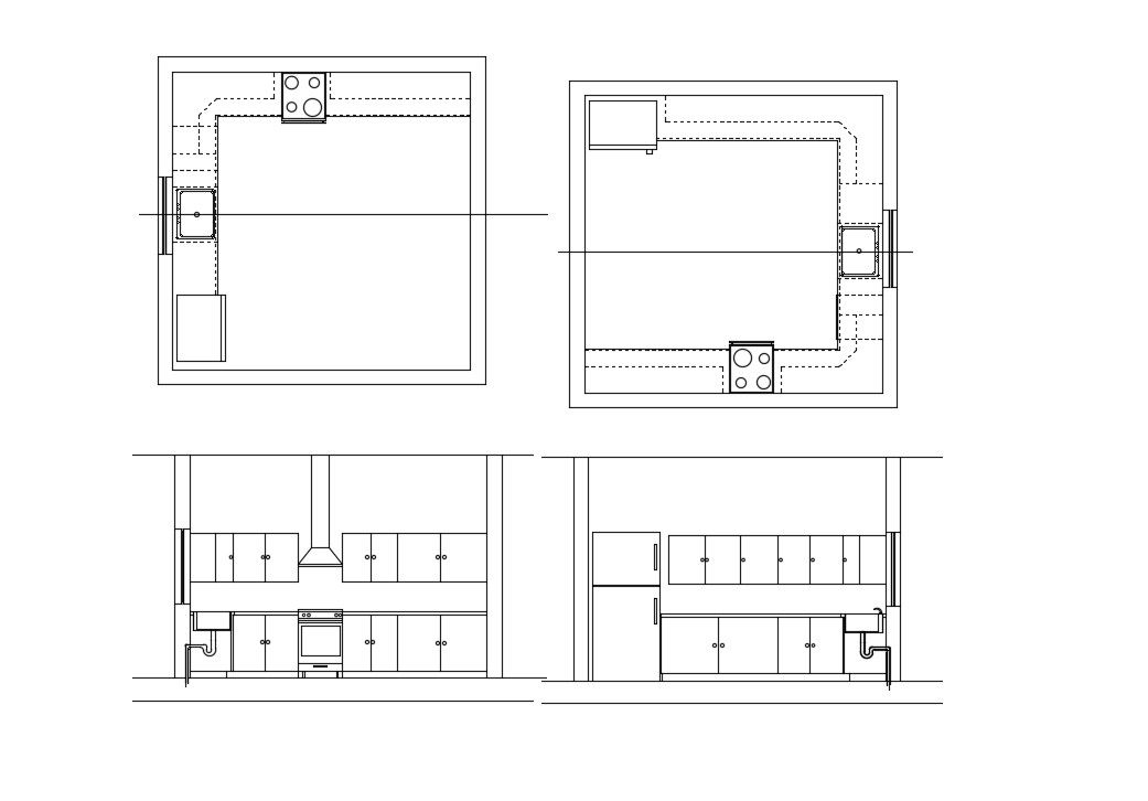
Kitchen Furniture Plan
Home
Categories
Interior Design
Kitchen Interiors
Kitchen Furniture Plan
Uploaded by:
Jiya
View Profile
View Profile
Description
Kitchen model design CAD drawing which shows the kitchen elevation and plan details along with kitchen furniture and automation blocks details.
File Type:
DWG
File Size:
40 KB
Category::
Interior Design
Sub Category::
Kitchen Interiors
type:
Gold
Uploaded by:
Jiya
View Profile
Download
Add to libary
find Latest
Related
Files