Electrical Design CAD File
Description
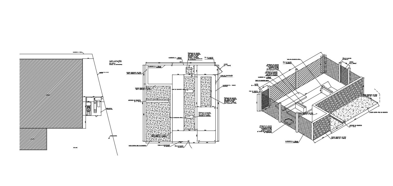
2d CAD drawing design of electrical units design which shows the electrical fuse box design along with the isometric view. Dimension and naming text details also included in the drawing.
File Type:
DWG
File Size:
559 KB
Category::
Electrical
Sub Category::
Electrical Automation Systems
type:
Free
Uploaded by:

