Room Interior Design CAD File
Description
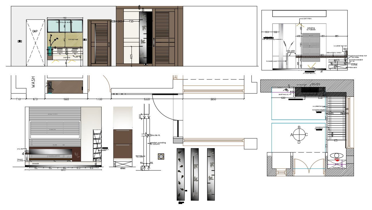
2d elevation design of the room which shows the wardrobe details, door window blocks details, plan details, and various other furniture blocks details consisted of the room.
File Type:
DWG
File Size:
355 KB
Category::
Interior Design
Sub Category::
Living Room Interior Design
type:
Gold
Uploaded by:
