House Shop Combo Floor Plans
Description
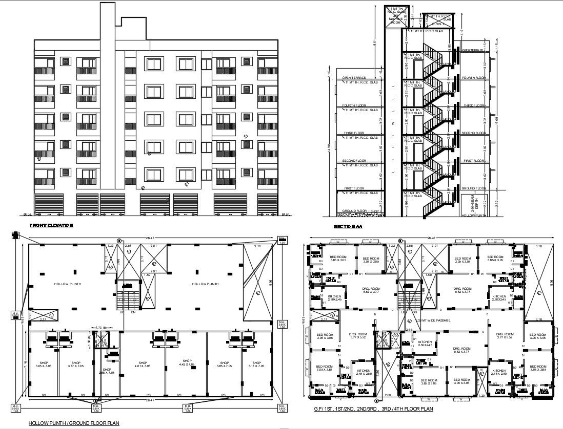
Plan elevation and sectional drawing details of house with combo shop at ground level along with apartment different sides of elevation and sectional details. Room dimension details, floor leveling details, terrace plan details also presented in CAD drawing.
Uploaded by:

