LOGIN
HOME
CATEGORIES
UPLOAD FILE
PRICING
HOUSE PLAN
ABOUT US
CONTACT US
Modern Bungalow Design
Home
Categories
Architecture
Bungalow House Design
Modern Bungalow Design
Uploaded by:
Jiya
View Profile
View Profile
Description
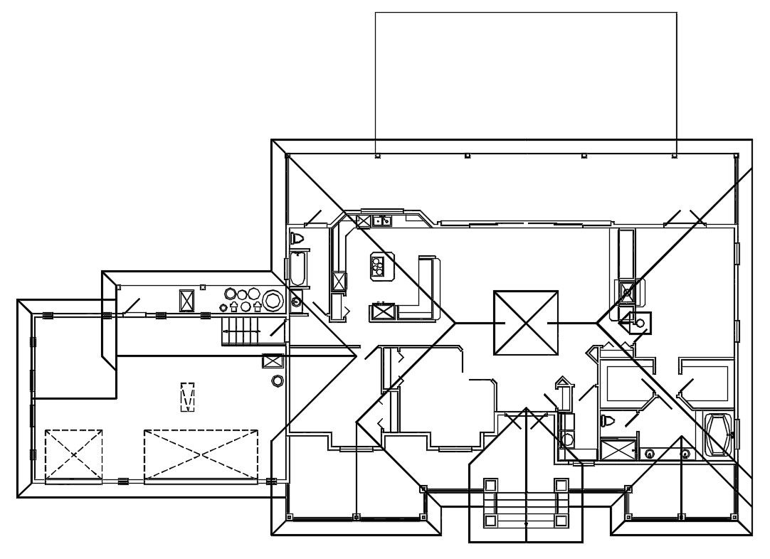
CAD plan of bungalow which shows the roof projection line details along with house design plan details and floor leveling details.
File Type:
DWG
File Size:
56 KB
Category::
Architecture
Sub Category::
Bungalow House Design
type:
Gold
Uploaded by:
Jiya
View Profile
Download
Add to libary
find Latest
Related
Files