Download Luxury Bungalow CAD Drawing
Description
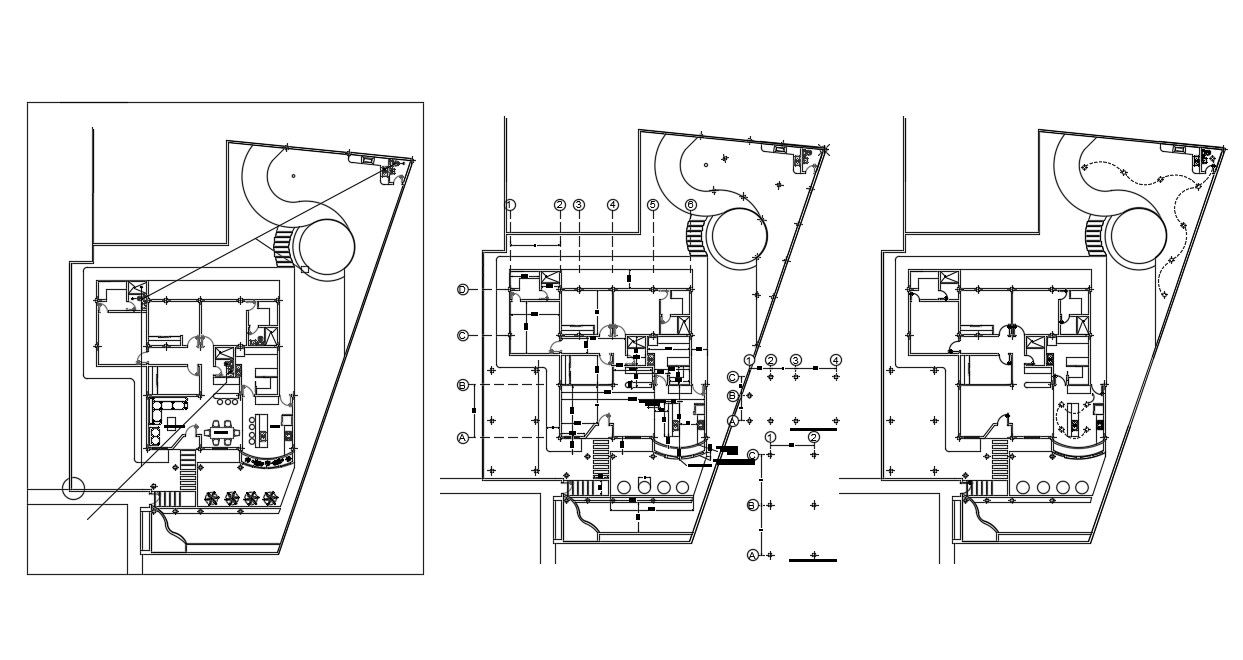
Layout design plan of bungalow which shows the three-story house plan details along with parking space area details, garden lawn details, compound boundary wall details, swimming pool design details, house room design details, and various other units details.
Uploaded by:

