LOGIN
HOME
CATEGORIES
UPLOAD FILE
PRICING
HOUSE PLAN
ABOUT US
CONTACT US
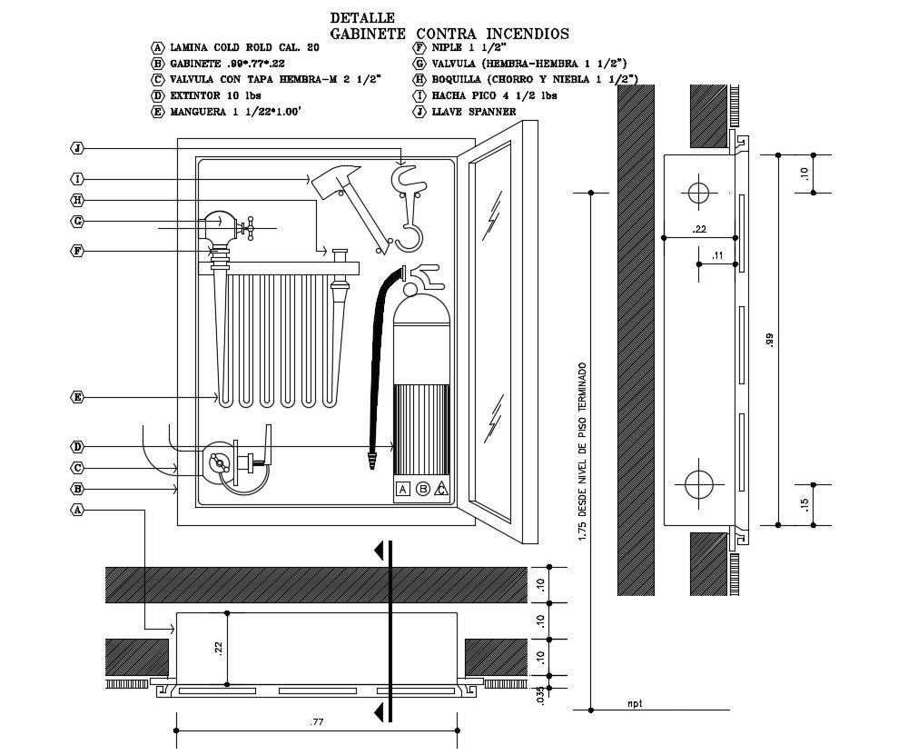
Safety Cabinet CAD drawing
Home
Categories
Dwg Cad Blocks
Furniture Cad Blocks
Safety Cabinet CAD drawing
Uploaded by:
Jiya
View Profile
View Profile
Description
2d drawing details of cabinet design for safety tools like fire extinguisher cylinder, hook, axe, and other units details placed within the cabinet used for emergency purpose.
File Type:
DWG
File Size:
118 KB
Category::
Dwg Cad Blocks
Sub Category::
Furniture Cad Blocks
type:
Gold
Uploaded by:
Jiya
View Profile
Download
Add to libary
find Latest
Related
Files