Kitchen furniture AutoCAD Block
Description
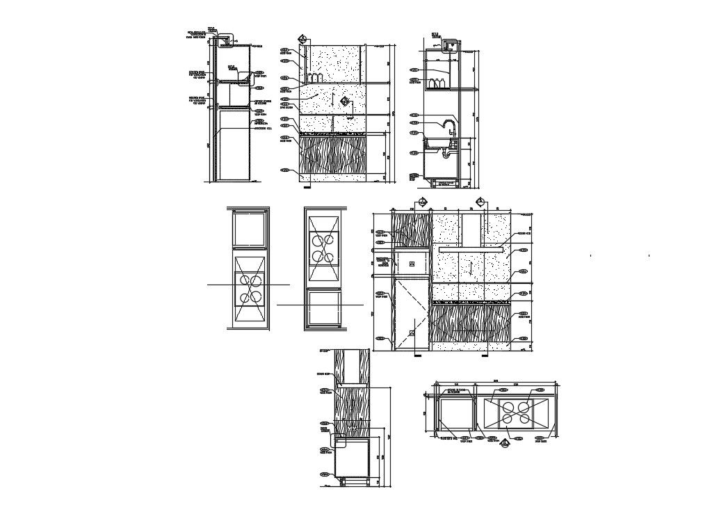
Kitchen furniture units design 2d CAD drawing download that shows kitchen gas-stove details, kitchen sink details, cabinet and shelves details, exhauster chimney details, and various other units details.

Uploaded by:
akansha
ghatge

