Architectural Electrical Plan
Description
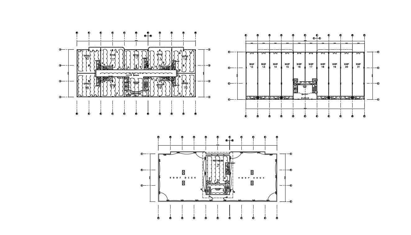
Drawing details of commercial building electrical layout plan which shows building electrical wiring details along with fuse circuits unit details, earthing wire details.

Uploaded by:
akansha
ghatge

Uploaded by:
ghatge