Terrace House Floor Plan
Description
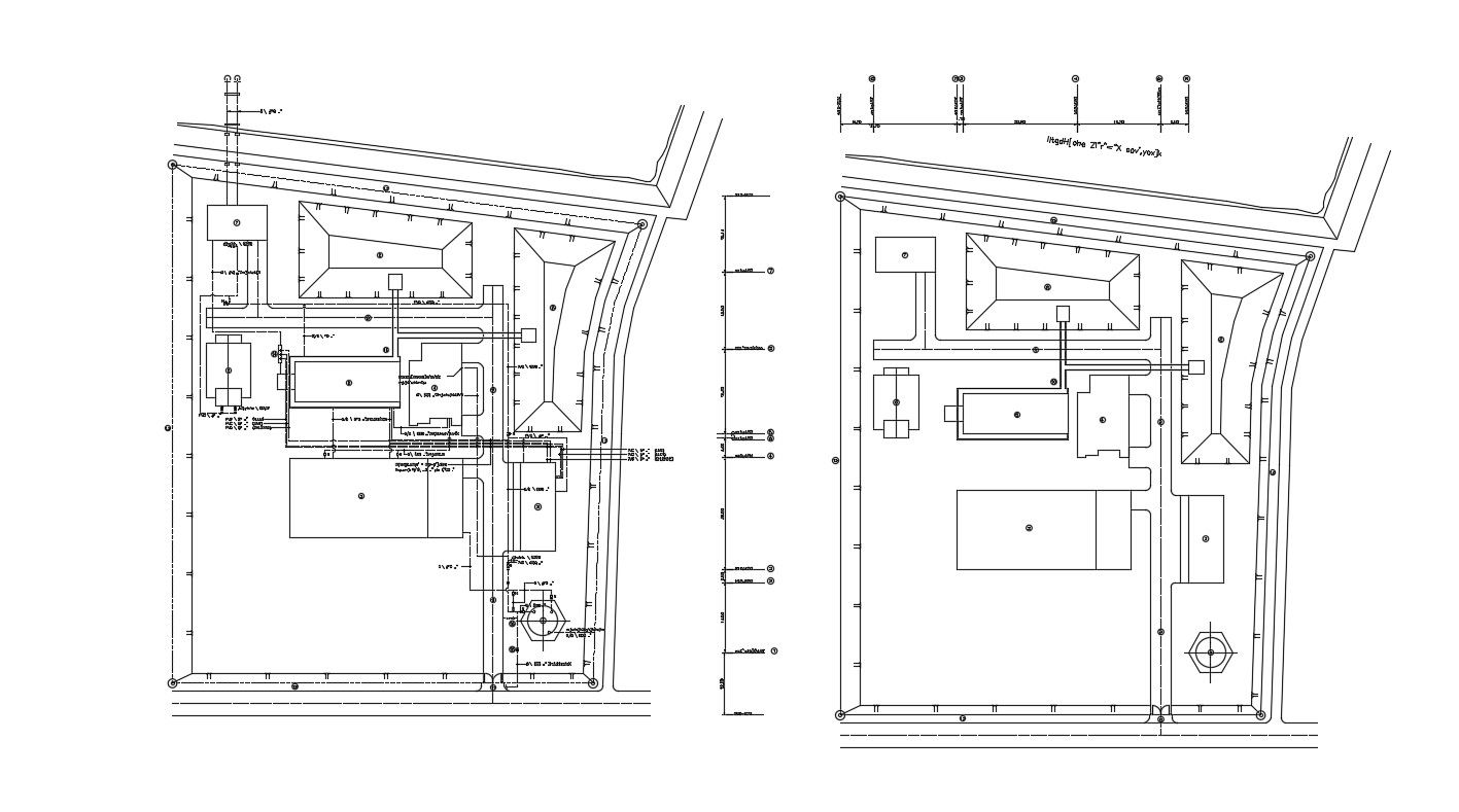
Design plan of building terrace plan that shows the house terrace layout plan design along with boundary area details, road network details, and other unit details.

Uploaded by:
akansha
ghatge

Uploaded by:
ghatge