Steel Roof Framing Plan Details
Description
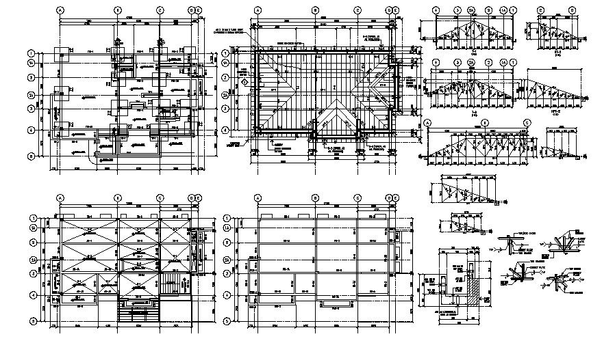
CAD drawing detailing of roofing structure plan and structural details which shows roof struts design details, roof plan details, roofing structure parts details of the principal rafter, roofing material, angle section, main and sag tie details, and other units details.

Uploaded by:
akansha
ghatge

