LOGIN
HOME
CATEGORIES
UPLOAD FILE
PRICING
HOUSE PLAN
ABOUT US
CONTACT US
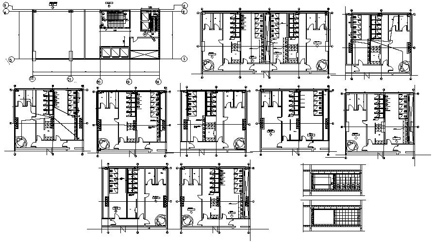
Public Washroom Plan
Home
Categories
Interior Design
Bathroom Interior
Public Washroom Plan
Uploaded by:
akansha
ghatge
View Profile
View Profile
Description
Download public toilet design plan which shows male and female toilet plan along with sanitary ware detailing, partition door details, and other unit details.
File Type:
DWG
File Size:
4.8 MB
Category::
Interior Design
Sub Category::
Bathroom Interior
type:
Gold
Uploaded by:
akansha
ghatge
View Profile
Download
Add to libary
find Latest
Related
Files