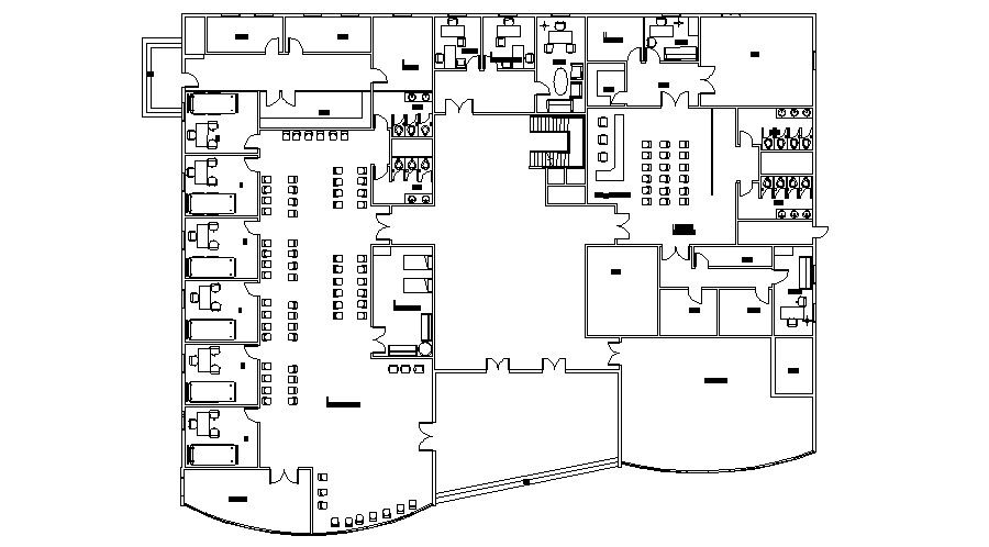
Floor Plan of Hospital Building
Description
Layout plan design of hospital CAD drawing which shows hospital building furniture layout plan details along with hospital room ward details, waiting area detail, medical store details, staircase details, and other hospital ammenties detailing also presented in drawing.

Uploaded by:
akansha
ghatge

