Download Restroom Plan CAD File
Description
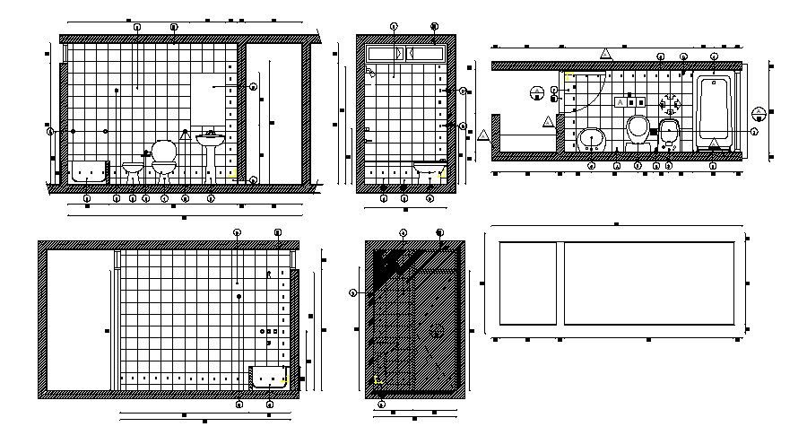
CAD drawing details of restroom floor plan details along with sanitary ware details of washbasin, water closet, bath-tub, shower units, plumbing blocks, and other unit details.

Uploaded by:
akansha
ghatge

Uploaded by:
ghatge