Kitchen Elevation Design
Description
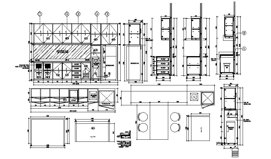
CAD drawing details of modular kitchen design drawing which shows kitchen elevation drawing details along with kitchen furniture and automation blocks details along with furniture arrangement details.

Uploaded by:
akansha
ghatge

