LOGIN
HOME
CATEGORIES
UPLOAD FILE
PRICING
HOUSE PLAN
ABOUT US
CONTACT US
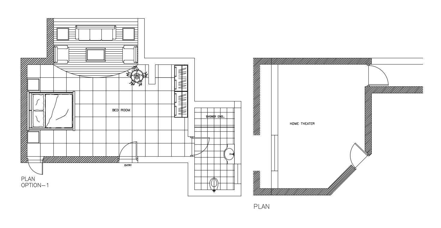
Master Bedroom Layout CAD Drawing
Home
Categories
Interior Design
Bedroom Interiors
Master Bedroom Layout CAD Drawing
Uploaded by:
akansha
ghatge
View Profile
View Profile
Description
Floor plan design of bedroom which shows furniture blocks details of a double bed, sofa-set, attached sanitary bathroom details download CAD file.
File Type:
DWG
File Size:
59 KB
Category::
Interior Design
Sub Category::
Bedroom Interiors
type:
Gold
Uploaded by:
akansha
ghatge
View Profile
Download
Add to libary
find Latest
Related
Files