LOGIN
HOME
CATEGORIES
UPLOAD FILE
PRICING
HOUSE PLAN
ABOUT US
CONTACT US
Residential Area Planning
Home
Categories
Urban Design
Town Design And Planning
Residential Area Planning
Uploaded by:
akansha
ghatge
View Profile
View Profile
Description
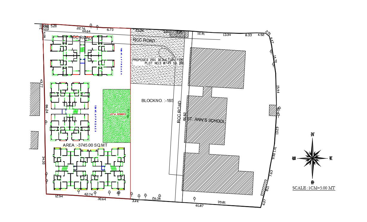
CAD drawing details of area planning that shows existing building details, road network details, school building details, area plot dimension, and other detailing.
File Type:
DWG
File Size:
150 KB
Category::
Urban Design
Sub Category::
Town Design And Planning
type:
Gold
Uploaded by:
akansha
ghatge
View Profile
Download
Add to libary
find Latest
Related
Files