Kitchen Floor Plan with Dimensions
Description
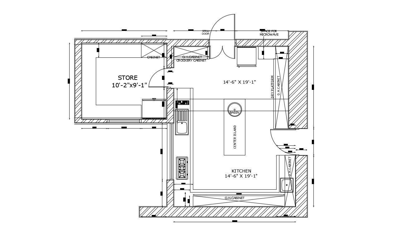
Floor plan design of house modular kitchen that shows kitchen interior dimension details, storeroom details, kitchen furniture and automation blocks, and other unit details.

Uploaded by:
akansha
ghatge

Uploaded by:
ghatge