Residence Elevation CAD Drawing
Description
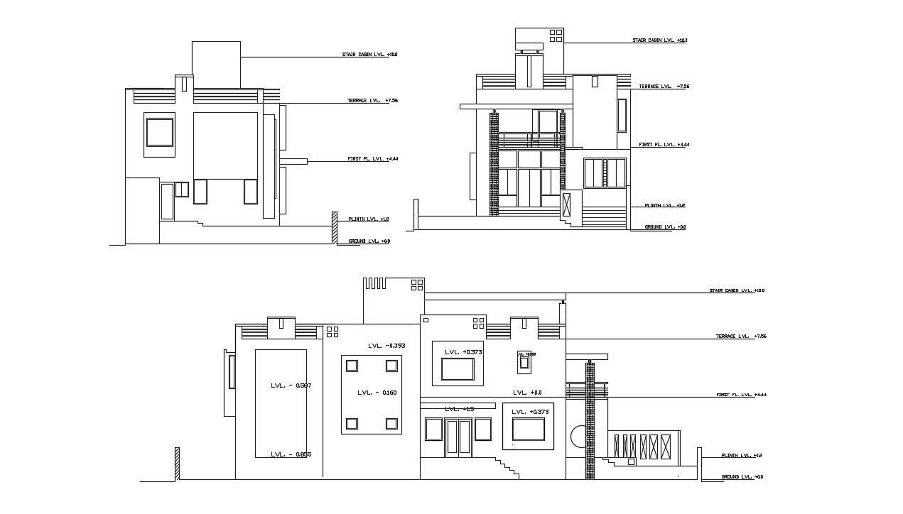
Download residential house different sides of elevation drawing which shows house front elevation, side elevation and rear elevation along with house floor level details.

Uploaded by:
akansha
ghatge

Uploaded by:
ghatge