Download Hospital Building Plan
Description
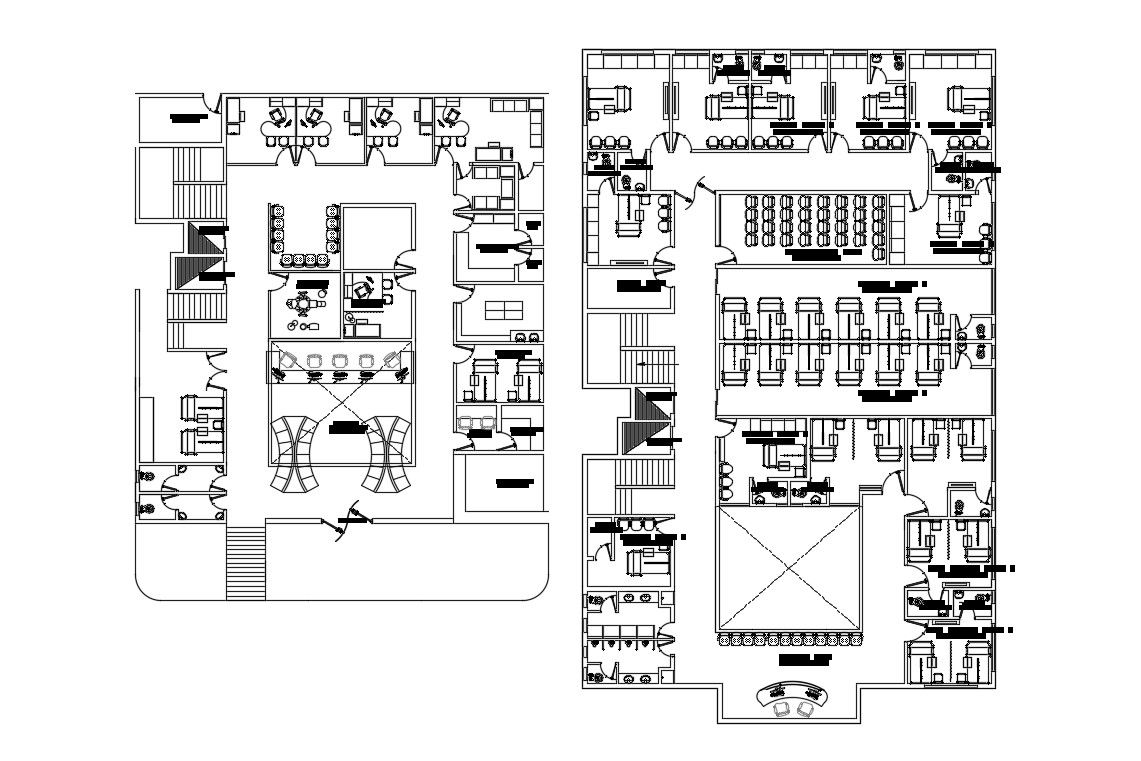
Floor plan design of hospital building drawing which shows furniture details in hospital along with hospital floor level details, hospital ward details, room details, waiting area details, and other hospital building amenities and facilities details.

Uploaded by:
akansha
ghatge

