4 Bhk Apartment Architecture Plan AutoCAD Drawing Download
Description
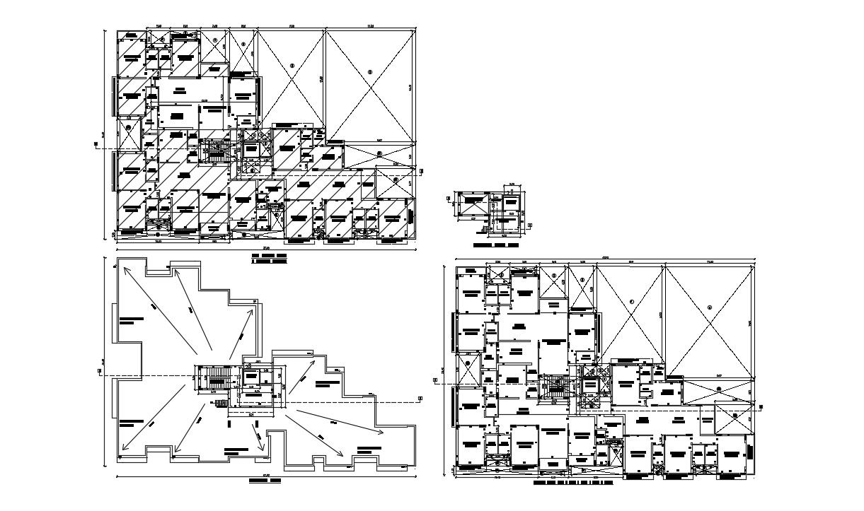
Working plan of residential living apartment CAD drawing download file that shows room details in the apartment along with room dimension details, floor level details, and gets other details from the file.

Uploaded by:
akansha
ghatge

