Hospital Building Design Plan AutoCAD drawing Download
Description
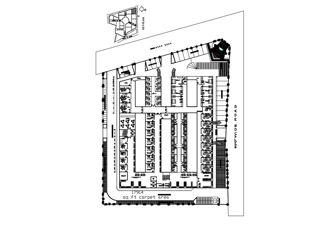
Ground floor plan design of hospital building that shows doctor's cabin, general and private ward, storeroom, ICU room, operation theater, and other rooms detailing. Room dimension details along with parking space and other utility details of hospital building also presented in drawing.

Uploaded by:
akansha
ghatge
