College Building Architecture Design AutoCAD Drawing
Description
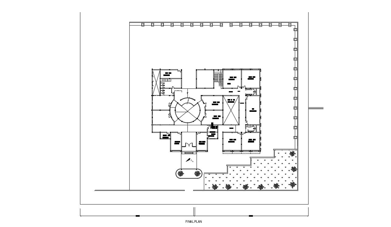
Floor plan details of college building design drawing room details of the classroom, pantry area, hall, staff office room, along with room dimension details and various other details of the building.

Uploaded by:
akansha
ghatge

