Office Building CAD Model | Architecture Plan DWG File
Description
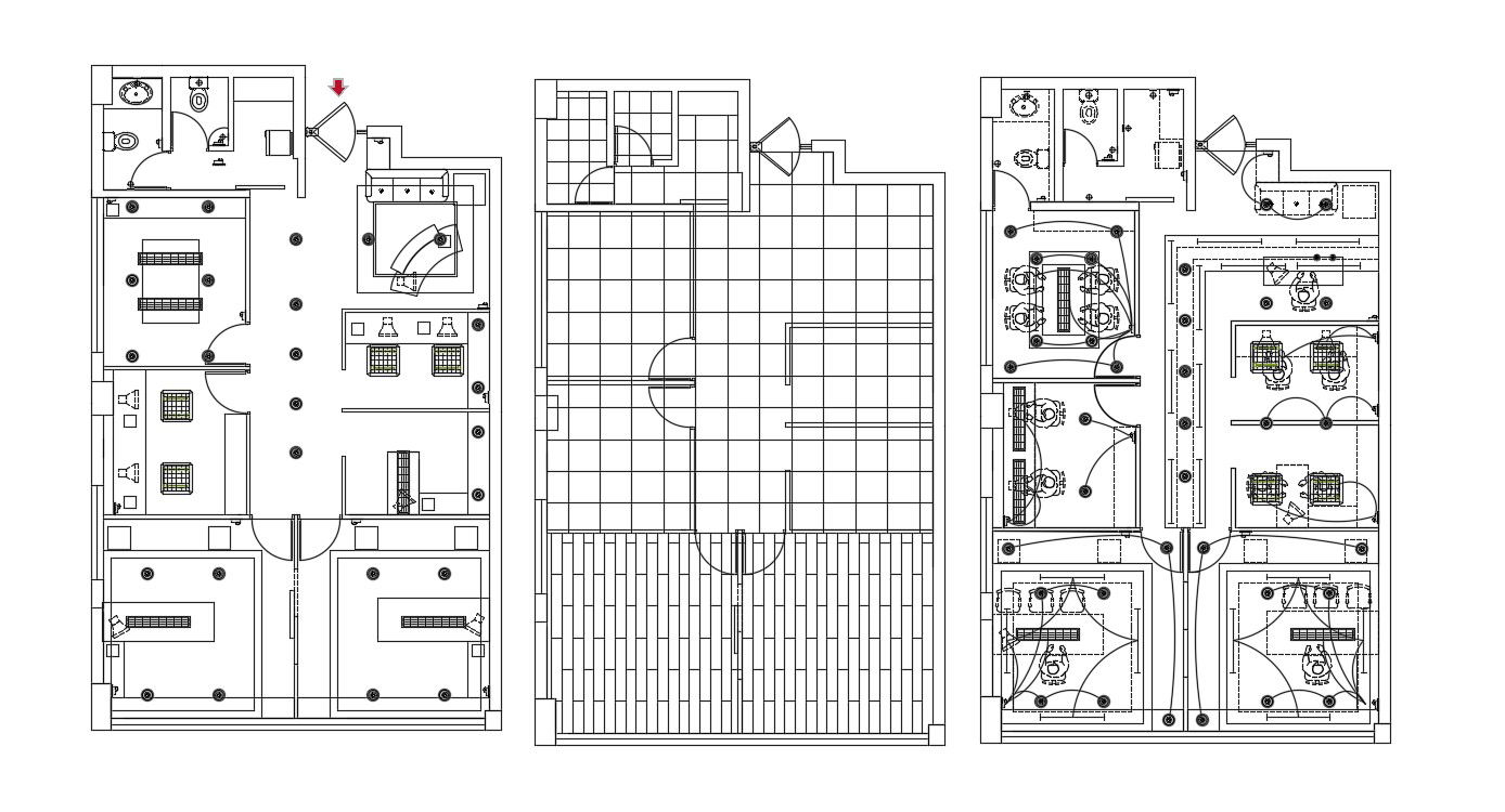
Furniture plan details of office building design that also includes electrical installation plan details in building with building floor level details download CAD file.
File Type:
3d max
File Size:
409 KB
Category::
Interior Design
Sub Category::
Modern Office Interior Design
type:
Gold

Uploaded by:
akansha
ghatge

