Living Room Furniture Layout Plan Download CAD Drawing
Description
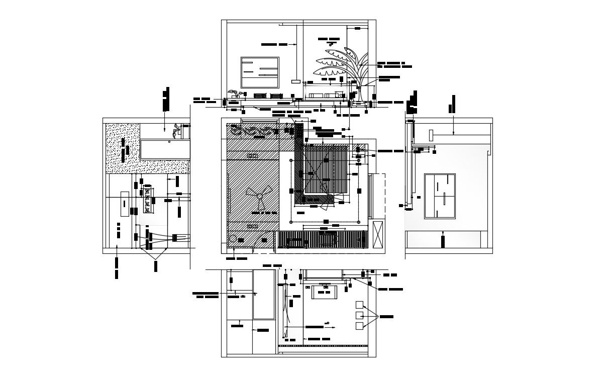
CAD Drawing of Drawing Room detailed design that shows ceiling plan details of drawing-room along with furniture details elevation of room, POP design, and for other details download the file.
File Type:
DWG
File Size:
159 KB
Category::
Interior Design
Sub Category::
Drawing And Living Area Interior Design
type:
Gold

Uploaded by:
akansha
ghatge

