Kitchen Floor Plan Design AutoCAD Drawing Download
Description
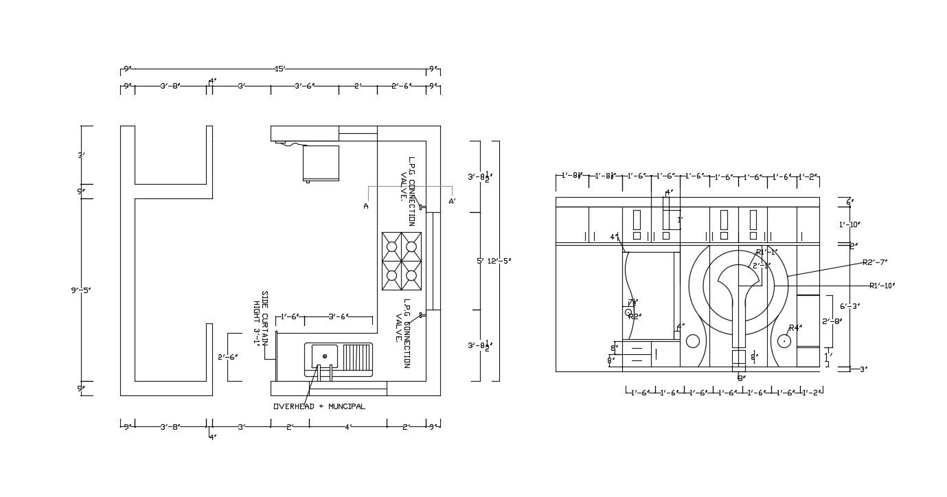
Furnished kitchen design plan that shows furniture and automation blocks arrangement details in the kitchen along with kitchen ceiling plan details, working set dimension details, and for more detailed drawing download CAD file.

Uploaded by:
akansha
ghatge

