2 BHK Modern Bungalow Design Furniture Layout plan
Description
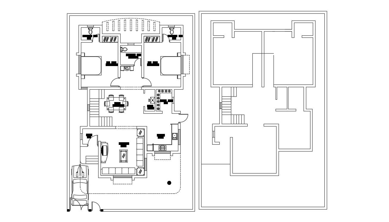
CAD drawing details of two BHK house furniture layout plan that shows room details in the house along with room dimension details, floor level details, parking space area, boundary wall, and other details download the file.
File Type:
DWG
File Size:
236 KB
Category::
Interior Design
Sub Category::
Bungalows Exterior And Interior Design
type:
Gold

Uploaded by:
akansha
ghatge

