Office building Architecture Working Plan Download
Description
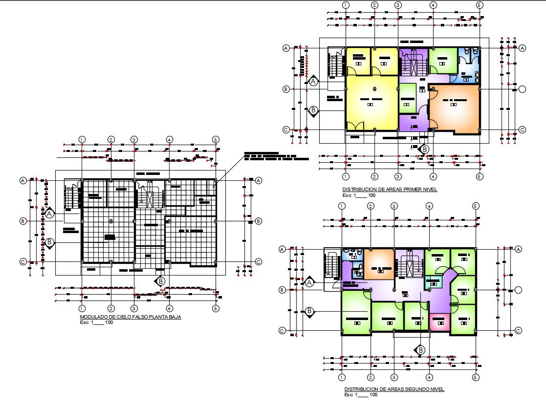
Layout floor plan details of office building design that shows building floor level details along with workspace area details, cabins and ward details, room dimension, working dimension set, and various other detailing download CAD Drawing.

Uploaded by:
akansha
ghatge

