Office Building Elevation and Section CAD Drawing
Description
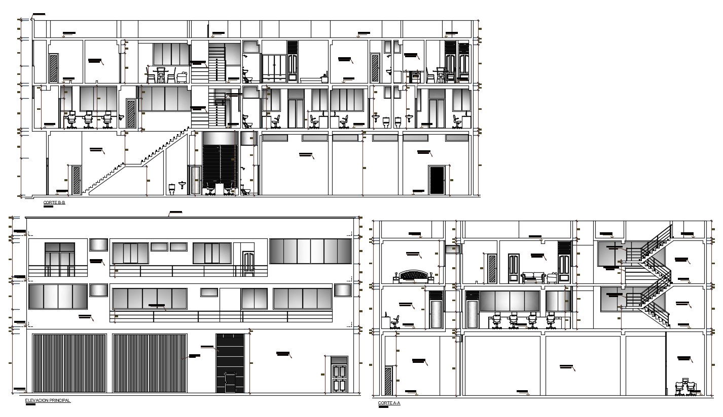
Elevation and sectional details of office design with a residential place provided on the upper floor, Download CAD drawing for more detail working drawing.

Uploaded by:
akansha
ghatge

Uploaded by:
ghatge