Commercial Residential Building Floor plan CAD Drawing
Description
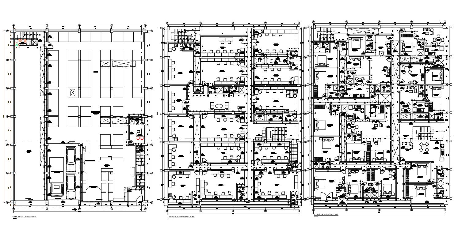
Commercial building with furniture layout plan detail CAD drawing that shows office building details n ground floor and residential details of the first floor, download AutoCAD drawing for the detailed Work plan.

Uploaded by:
akansha
ghatge
