Car Parking Design CAD Layout Drawing Download
Description
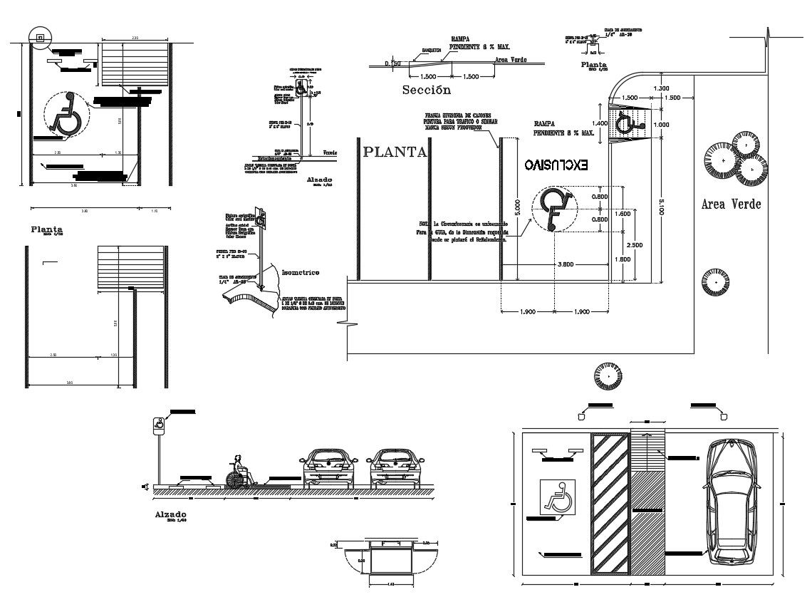
CAD drawing details of Parking area plan, elevation and sectional details along with marking signs boards, dimension, and other details download the file.

Uploaded by:
akansha
ghatge

Uploaded by:
ghatge