Raft Foundation Construction Plan download AutoCAD Drawing
Description
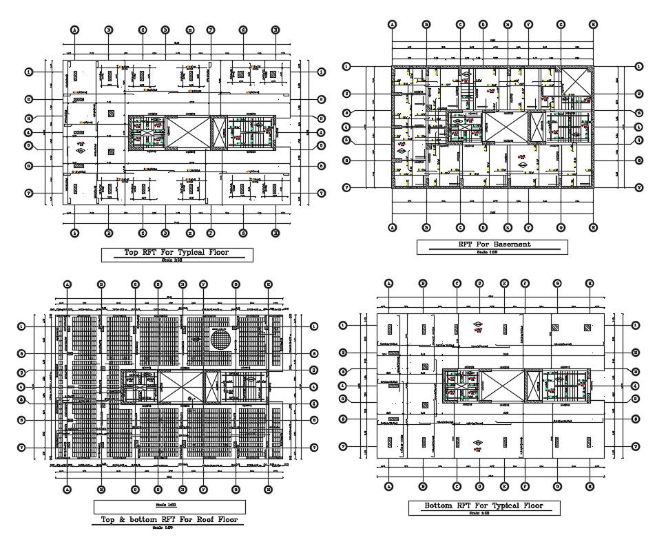
CAD drawing details of the footing plan that shows the typical layout of raft footing construction details along with footing spacing details, dimension details, footing size, and other RCC structural blocks detailing download file.

Uploaded by:
akansha
ghatge
