LOGIN
HOME
CATEGORIES
UPLOAD FILE
PRICING
HOUSE PLAN
ABOUT US
CONTACT US
G+1 House Section Drawing Download CAD File
Home
Categories
Architecture
House Plan
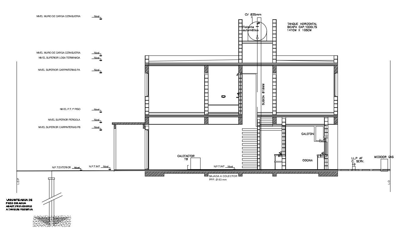
G+1 House Section Drawing Download CAD File
Uploaded by:
akansha
ghatge
View Profile
View Profile
Description
Residential house Sectional Design that shows house floor level details along with wall and flooring details, download CAD file for free.
File Type:
DWG
File Size:
338 KB
Category::
Architecture
Sub Category::
House Plan
type:
Free
Uploaded by:
akansha
ghatge
View Profile
Download
Add to libary
find Latest
Related
Files